Сборка деревянных лестниц своими руками
Лестница — одна из наиболее ответственных и сложных в изготовлении внутридомовых конструкций, требующих уверенного знания принципов создания и монтажа. Однако, правильно подготовившись, можно сделать ее и своими руками. Подойдет способ для конструкций из дерева — металлокаркас производят и сваривают в специальных условиях. Обработать же доски и брус можно и дома, если есть специальный столярный инструмент. Рассмотрим, как изготовить и выполнить монтаж деревянных лестниц самостоятельно, и что при этом нужно знать.
Если вы решили делать все своими руками, лучше остановиться на традиционной конструкции с маршами (пролеты с определенным числом ступеней), межэтажными площадками и несущей основой. Для установки винтовых моделей понадобится металлическая ось, которую, в принципе, можно приобрести у компании-изготовителя лестниц. Консольные, больцевые и другие сложные конструкции рекомендуется заказывать у профессионалов, иначе достаточного уровня безопасности не добиться. Маршевую же лестницу можно самостоятельно собрать из деревянных элементов — как конструктор. Она будет красивой и, если все сделать правильно — прочной и долговечной.

Для монтажа деревянной лестницы понадобятся детали:
- несущая основа, на которую укладываются ступени и монтируется ограждение — это может быть деревянный косоур, куда все детали кладутся поверх, или тетива с креплением к бокам балки;
- планки, на которые ступает нога при подъеме и спуске — их называют проступями;
- детали, закрывающие вертикальный проем между ступенями — подступенки;
- перильное ограждение с вертикальными стойками-балясинами и поручнями.
Расчёт лестницы
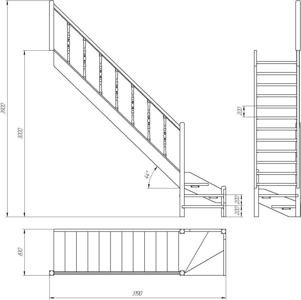
Перед изготовлением и установкой деревянной лестницы необходимо внимательно отнестись к ответственному этапу — проектированию. При правильности расчетов сам монтаж не отнимет много времени, готовая конструкция будет надежной и ровной. Удобнее всего пользоваться специальным ПО для проектирования и разработки чертежей — «Автокадом» или другой программой. Обязательно нужно учитывать действующие нормативно-технические документы — ГОСТ №23120-78 и №25772-83, СП 64.13330.2011 и так далее. Расчет выполняют поэтапно, начиная с общей высоты лестницы.

Высота
Общую высоту деревянной конструкции определяют, замеряя общее расстояние от готового напольного покрытия на нижнем этаже дома до чистового пола на верхнем этаже. Если здание не достроено или в нем нет чистовой отделки, которая подчас отнимает немало сантиметров, пользуются предположительными отметками. Для точного замера горизонтали и вертикали пользуются строительным уровнем. При расчетах обязательно делают поправку на высоту межэтажного перекрытия и «пирога» чистовой отделки.
Высота подступенка
Этот параметр рассчитывают, чтобы узнать, сколько понадобится ступеней. Для «среднего» по росту и физическим характеристикам человека анатомически удобная высота подступенков — от 15 до 19 см. Если взять меньшую величину, будет сбиваться шаг, большую — лестница станет опасна для передвижения. Стандартно берут 17 см — это оптимальное значение.
Количество и ширина ступеней
По действующим нормам число ступеней не должно превышать 17 штук в одном марше. Чтобы рассчитать их достаточное количество, делят измеренную высоту лестницы на высоту подступенка. Если число получилось дробным, можно:
- оставить «как есть», при условии, что при изготовлении будет соблюдаться высочайшая точность;
- округлить параметр до целого в большую сторону — в этом случае необходимо будет сделать поправку на высоту нижней ступени, уменьшив ее.
Оптимальная высота ступеней — от 15 до 20 см. Ширина проступи, по стандартам, должна в сумме с высотой подступенка составлять не менее 50 см, чтобы стопа удобно и безопасно опиралась на нее. Средняя величина — от 22 до 40 см, оптимально 30 см. Глубина проступей должна быть не меньше 25 см.

Ширина лестницы
Минимально допустимая нормами и достаточная для удобного прохода ширина площадок, проемов и маршей — 80 см. Точное число подбирают, ориентируясь на имеющееся свободное место. Чтобы проходить и поворачивать было удобно, желательно оставлять не менее метра — до 110 см. Для гармоничного и соразмерного вида лестницы стоит сделать параметры ее ширины и ширины проступи кратными друг другу.
Размер проёма в потолке, угол наклона лестницы и прочие параметры
Проем в межэтажном перекрытии рассчитывают по внутренней ширине лестницы. Учитывают и рост самого высокого из хозяев дома — чтобы ему не пришлось наклоняться при подъеме из-за нехватки свободного места. Высота просвета должен быть на уровне от 2 метров, ширина проема — от 1 метра.
По действующим нормам, максимальный угол наклона для внутридомовых систем составляет 45 градусов. Если он превышен, лестница будет относиться к категории приставных. При угле менее 30 градусов ходить будет неудобно из-за чрезмерной пологости. Оптимальная «вилка» — 35-40 градусов. Угол наклона марша определяется, в том числе, количеством ступеней — на таблице ниже указано ориентировочное соотношение:

Для ограждений тоже существует ограничение по безопасности — не менее 90 см в высоту. Просвет между балясинами должен быть больше 20 см, а если в семье есть маленькие дети, животные — 15 см.
Выбор материала
Для изготовления деревянных элементов своими руками используют высушенный массив или, для экономии, клееную доску с равномерной структурой, без сучковатости и инородных включений. Вот несколько общих правил:
- для каркаса лестницы, подвергающемуся постоянным нагрузкам, стоит отдать предпочтение твердым породам — дубу (он хоть и недешевый, но прочный, износостойкий и красивый), буку, грабу, при условии, что он грамотно высушен;
- несущие деревянные тетивы, косоуры конструкций под умеренной нагрузкой можно делать из доступной сосны (чтобы лестница не скрипела, древесину специально обрабатывают), хвойной лиственницы, ясеня — он подойдет, если в помещениях не слишком сухо, иначе велик риск растрескивания;
- проступи и поручни делают из массива с маркировкой Е, износостойких пород — бука, тика, который при намокании не становится скользким, дуба и граба;
- для подступенков подойдут и доступные материалы — сосна, пихта;
- деревянную облицовку, как правило, делают из благородных, декоративных пород — вишни, ореха, ясеня, экзотических венге, мербау и так далее.
При подборе дерева учитывают средние температурно-влажностные параметры микроклимата в помещениях, нагрузку на все элементы, частоту использования лестницы и прочие параметры, важные для владельцев.

Изготовление и сборка деталей
Чтобы изготовить детали своими руками, понадобятся инструменты — электродрели, пилы, ножовки, рубанки. шуруповерты, электролобзики. Обязательно нужны измерительные приборы (отвес, рулетка, уровень) и чертежные принадлежности, желательно строительные. Для монтажа понадобятся и комплектующие — металлические шпильки, саморезы, уголки, зип-болты, деревянные шканты, столярный клей, лаки, краски и так далее.
Изготовление и установка тетивы или косоуров
Первый этап установки — изготовление несущей основы и ее монтаж. Тетиву делают из сплошных балок, прорезая в них углубления для вставки ступеней. Чтобы система не разошлась, нужны фиксаторы — металлические, деревянные тяжи или другие крепления. На косоуры детали накладываются сверху. Крепление выполняют на специальную фурнитуру, уголки.
Чтобы сделать основу, подготовленные деревянные балки обрезают под размер готовой лестницы, и дополнительно снимают участок, равный толщине проступи. Затем на детали наносят разметку по параметрам ступеней и выпиливают выемки стамеской или фрезерным станком. Готовый первый элемент будет шаблоном для изготовления остальных.
При установке несущие балки приставляют к месту размещения лестницы, упирая верхний конец в межэтажное перекрытие, а нижний — в пол первого этажа. Перед креплением деталей на анкеры, саморезы, металлические уголки проверяют совпадение горизонтов с помощью уровня. Если используются косоуры, их скрепляют дополнительными поперечными балками для надежности, а к стене фиксируют «глухарями» или дюбелями по проектным меткам.
Изготовление и крепление ступеней и подступенков
Монтаж проступей и, желательно, подступенков на тетиву выполняют поэтапно:
- по лекалам с рассчитанными размерами вырезают все детали ступеней и обрабатывают шкуркой;
- пазы в тетивах лестницы смазывают столярным клеем и устанавливают в них проступи, начиная снизу;
- в тетивах проделывают отверстия, устанавливают тяжи и фиксируют гайками;
- после высыхания клея подступенки, а затем проступи фиксируют на саморезы, гвозди или другой крепеж.

Установка на косоуры проще. Ступени закрепляют на них болтами, саморезами с фронтальной стороны, закрывая шляпки накладками или затирая грунтовкой, мастикой.
Изготовление и монтаж ограждений
После монтажа несущей основы и ступеней ставят ограждение. Без него лестница будет опасной, а ее вид — незавершенным. Балясины устанавливают на подступенки, закрепляя шпильками, шкантами или анкерами, или фиксируют непосредственно сбоку к тетиве (но это менее эстетичный вариант).
После возведения марша лестницы ставят опорные тумбы. Затем в основе и балясинах просверливают отверстия под крепеж, заполняют их клеем и фиксируют вертикальные элементы. После установки высоту подгоняют, обрезая излишки по уклону лестницы. Затем на балясины укладывают поручни, привинчивают их и обрезают сверху и снизу. Завершает сборку финишная обработка лестницы. Красить или лакировать ее нужно после установки всех элементов и высыхания клея и грунтовки.

«Лестница в дом» — профессиональное изготовление лестниц всех типов
При «уверенных» столярных навыках и вдумчивом подходе к работе можно выполнить ее и своими руками, но нужно помнить: лестницы — ответственные конструкции, которые должны быть на 100% безопасными. Обеспечить полную надежность может только точный расчет размеров, грамотное изготовление и установка с учетом специфических нюансов.
Компания «Лестница в дом» предлагает профессиональные услуги проектирования и производства деревянных, металлических и комбинированных лестниц всех типов. Мы учтем площадь, высоту помещения, обеспечим гарантированное удобство и безопасность основы, ограждений, подберем дизайн с учетом интерьера дома или офиса. Заказчикам из Москвы и МО мы также предлагаем услуги установки деревянных лестниц — наружных, внутренних, с металлокаркасом и всех прочих.
Мы работаем по готовым проектам и выполняем индивидуальные заказы. Готовые лестницы доставляются покупателям (в регионы РФ — транспортными компаниями). На продукцию действует гарантия 12 месяцев.

Вызвать замерщика
Изготовление лестницы своими руками

Привет всем!
Как и обещал ранее, сегодня расскажу вам как я изготовил деревянную лестницу дачного домика своими руками.
Не для кого не секрет, что если приобретать готовую лестницу в специализированных магазинах или нанимать специалистов для изготовления и монтажа лестницы, то это для вас обойдётся как минимум дорого. Я же пошёл менее затратным способом в финансовом плане и менееее трудоёмким в плане самих работ. Но обо всём по порядку.
Перед самостоятельным изготовлением изначально нужно измерить длину (2800мм) и высоту места (2800мм), где вы хотите установить лестницу.
Ширина лестницы обычно берется стандартной или уменьшается/увеличивается исходя из ваших предпочтений и комфорта перемещения на ней.
После этого, исходя из ваших размеров, нужно будет рассчитать необходимое количество ступеней. После данных расчетов вы сможете определиться с количеством необходимых материалов для изготовления лестницы.
Независимо от наличия или отсутствия опыта изготовление лестницы своими руками любому мастеру следует начать с расчетов и проектирования. Проект следует ориентировать на безопасность и создание лучших условий для перемещения.
Расчет размеров ступеней и уклона лестничного марша.
При подъеме человек затрачивает примерно в два раза больше энергии, чем при движении по горизонтали (рис. 2). Практикой установлено: лестница удобна и безопасна, если удвоенная высота подступёнка, сложенная с шириной ступени (проступью), равняется среднему шагу человека. Длина шага человека на плоскости составляет примерно 600–640 мм. Исходя из этого, проступь и подъем определяют по формуле: 2а+b = 600…640 мм.
рис.2. Расчет высоты и ширины рядовых ступеней

Как альтернативу можно использовать другую, более легкую для запоминания, формулу: а+b = 450 ± 20 мм, где а — высота ступени (подступёнка), b — ширина ступени (проступи).
Ширина проступи должна обеспечивать опирание ноги полной стопой, то есть быть не меньше 200 и не больше 320 мм. Оптимальной считается высота подступёнка, равная 150, а ширина проступи — 300 мм. При сильном увеличении ширины проступи вы непременно собьетесь с шага, а при сильном уменьшении затруднится спуск. При проектировании забежных ступеней нужно учитывать, что минимальная ширина ступеней с узкого конца должна составлять не менее 100 мм, а нависание проступи над нижней ступенькой должно быть не более 50 мм. Так же нависание верхней ступени над нижней делается тогда, когда другими способами не удается увеличить ширину проступи, в этом случае величина нависания не должна превышать 30 мм для деревянных и 50 мм для железобетонных ступеней.
Наиболее удобные углы подъёма лестницы находятся в диапазоне от 23 до 37°. Чем лестница круче, тем меньше ей надо места для установки в доме, и соответственно, чем лестница положе, тем больше места необходимо для неё предусмотреть. Если угол меньше 23° — лестницу можно заменить пандусом (ровной наклонной площадкой), если больше 45°, то лестница переходит в разряд приставных или раскладных (рис. 3).
Оптимальный угол подъема винтовых лестниц — 25—35°. Наиболее сложным процессом при крутизне лестничного марша более 40° является спуск с лестницы, а при углах более 45° спуск можно осуществлять только спиной вперед.
рис. 3. Нормативная зависимость размеров ступеней от крутизны лестницы

Количество ступеней зависит от высоты этажа и угла наклона лестницы.
Зная местоположение лестницы в плане и высоту помещения, количество ступеней можно (и проще) установить графически, а после этого, по формулам безопасности определить ширину проступи.
Для графического построения лестницы на миллиметровой бумаге или бумаге «в клеточку» нужно в масштабе нарисовать лестничный марш (рис. 4) соизмеряя его с высотой этажа.
рис. 4. Пример графического расчета количества ступеней и высоты подступёнка. Таблица высот для ступенек в зданиях с нормативной высотой этажа.

Высотой этажа называется разница высотных отметок уровней чистого пола нижнего и верхнего этажа, то есть в размер высоты этажа должны быть включены толщины одежды полов. Обычно стандартная высота этажа равна 2,8 или 3 м, реже — 2,7 или 3,3 м, что позволяет проектировать высоту помещения (расстояние от пола до потолка) не менее 2,4 м. Такая высота этажа позволяют без особого труда вписать лестницу с размерами ступеней, отвечающим требованиям расчетной формулы безопасности (рис. 4, таблица 2). Если ваша высота этажа отличается от нормативной и не кратна 3, то высоту ступеней нужно рассчитывать (округлять) с точностью до одного миллиметра, но так, чтобы высоты всех подступёнков были одинаковыми. Погрешность вычисления, набегающую от округления высот, лучше распределить на нижнюю фризовую ступень, а остальные ступеньки марша сделать одинаковой высоты.
Разные по высоте ступени приводят к постройке травмоопасной лестницы. Особенно опасной эта лестница становится во время спуска в ночное время суток. Спускаясь по лестнице, мышечная память нам подсказывает, что должна быть ступенька. Вес тела переносится на ногу, а ступеньки под ней нет… Она — ниже! И всего-то два-три десятка миллиметров, а ногу подвернули… и еще хорошо, если не покатились кубарем вниз.
В домах с нестандартной высотой этажа для выравнивания высоты ступеней допускается опустить уровень чистого пола верхней этажной площадки чуть ниже относительно уровня чистого пола остального этажа.
Порожек лучше не делать, а сделать пол этажной площадки в виде пандуса, то есть наклонным. Для подравнивания высоты ступенек потребуется всего несколько миллиметров так, что уклон будет вряд ли сильно заметным. Как вариант, если лестничная площадка огорожена стенами с дверями, полы между этими помещениями можно сделать с небольшим порогом. Такое решение всем хорошо знакомо: уровень этажных площадок в многоквартирных домах, как правило, ниже уровня чистых полов в квартирах. Ноги мы здесь не ломаем — привыкли.
В таблице 1 рисунка 3 приведены размеры ступеней для «уплотненных» лестниц, пригодных для загородных домов. Нередко в планировках этих домов под лестницы оставляется так мало места, что для того, чтобы сделать лестницу короче, приходится жертвовать шириной проступи. Так, например, в лестнице с высотой подступёнка 200 мм ширина проступи равняется 250 мм. Взрослый человек не может опереться на такую проступь полной ступней и ему приходится спускаться с лестницы боком или спиной вперед. В таблице 2 рисунка 4 приведены размеры высот подступёнков для стандартных высот этажа. Рассчитать ширину проступи по формулам безопасности не составит особого труда. Но есть и еще один способ определить размеры ступеней — графический.
Этот эргономический способ основан на том, что человек, свободно делая по горизонтальной плоскости шаг в 620 мм, может с той же легкостью поднимать ногу на высоту, равную лишь половине этой величины, то есть на 310 мм. Поэтому, если на горизонтальной оси графика (рис. 5) отложить известное число частей, равных каждая одному шагу (620 мм), а на вертикальной оси — равных высоте подъема ноги 310 мм, то такое построение дает возможность получить размеры подъема и ширины ступеней для лестницы с любым наклоном. Для этого нужно нанести на график линию наклона своей лестницы (ее высота и длина известны) и в точках пересечения с сеткой графика провести перпендикуляры. Это и есть оптимальная высота и ширина ступени для данного уклона лестничного марша. Более того, вы можете воспользоваться этим методом и построить лестницу конкретно «по себя». Например, задав шаг равным 600, а подъем соответственно 300 мм либо задав длину шага такой, какой вы считаете нужным.
рис. 5. Графический способ подбора оптимальных размеров ступеней (размеры в мм).

После того как все расчеты готовы приступайте к расчету необходимых вам материалов и их закупке.
Для постройки своей лестницы я использовал мебельные клеёные щиты из сосны толщиной 40мм (4см). Ступени и боковины лестницы имеют одинаковую ширину, так получается меньше обрезков при раскрое листов (щитов) по длине заготовок.
Большие и маленькие резные балясины проще купить, чем изготовить. Тем более, они имеют одинаковую высоту (90см), что облегчает их последующую резку под нужный вам угол.
После раскроя и нарезки заготовок в точные размеры, на косоурах (боковины лестницы) размечаем карандашом места размещения ступеней.
Наружние кромки на ступенях и косоурах обрабатываем фрезером, с целью получения закругленной кромки.
Потом я брал готовую ступеньку и прикладывал по разметке, по очереди, к каждой стороне косоуров, обводя каждую сторону карандашом.
Для более точной подгонки рекомендую промаркировать каждую сторону ступени в местах будующих стыков ступени с косоуром отдельно.

Когда все ступени прорисованы на косоурах, делаем разметку для отверстий, по два с каждой стороны. Сверлим отверстия, они нам потом понадобятся для притяжки ступеней с наружной стороны конфирматами.
Просверлив отверстия приступаем к «выборке» дерева эл.Фрезером на косоурах не выходя из размеров ступени, обведенной ранее карандашом на косоуре.
Глубину выборки я делал на10мм (1 см).
Получив нужные «ямочки-углубления», вставляем каждую ступень в косоур согласно разметки.
Вы получите вид почти готовой лестницы:) С наружних сторон в уже готовые отверстия вставляем дрель со сверлом для винтов-конфирматов и делаем нужные отверстия.
Торцы каждой ступени промазываем столярным клеем, вставляем ступени в посадочные места на косоурах и прикручиваем конфирматы. Глубину залегания шляпки конфирмата я делал 5мм от наружной поверхности, чтобы потом туда вбить деревянные чёпики и закрыть визуально места крепления на боковой наружной поверхности.

Деревянные чёпики продаются в магазинах диаметрами 4-12мм. Я их тоже сажал на столярный клей.Основная «пешеходная» часть лестницы готова!
Устанавливаем и крепим лестницу на место.
После этого, собираем «узлы» балясины-перила. Баляны необходимо крепить к рейкам, привинчивая их сверху и снизу. В нижней части я по НЕ знанию начал крепить балясины прямо к косоуру конфирматами под углом 45градусов, это было ошибкой! Но раз уж начал так, то так и пришлось закончить нижнюю часть крепления.
Верхнюю часть уже сделал как положено! Т.е. балясина привинчена к рейке, сама рейка привинчена к периле с внутренней стороны, с боков рейка прикрывается фальш-рейкой, которая прибивается маленькими тонкими гвоздиками.
После того как вся конструкция лестницы собрана воедино, все ненужные щели и зазоры промазываем шпатлевкой в цвет дерева.
После высыхания шпатлевки делаем зачистку всех стыков шкуркой.
Протираем всё слегка влажной тряпочкой и после высыхания наносим защитное покрытие для древесины. После высыхания, окрашиваем лаком.
Монтаж лестницы
Деревянные лестницы в доме – это очень привлекательный элемент, который способен украсить или, наоборот, испортить внешний облик любой комнаты. Красивые резные лестницы, как та, что показана на заглавном фото – это прерогатива профессиональных сборщиков и резчиков, но это вовсе не означает, что простые конструкции, собранные своими руками не могут выглядеть эффектно.
В сегодняшней статье мы поэтапно разберем монтаж лестниц из дерева. Этот материал позволит вам собрать добротную конструкцию своими руками, не тратя больших средств на наем специалистов и материал.
Первое с чем сталкивается любой строитель – это проектирование будущих работ. В случае с постройкой лестницы, от вас потребуется создать настоящий чертеж в масштабе.
Именно чертеж, а не наброски на куске картона или пачке сигарет. Такой подход позволит избежать появления распространенных ошибок при изготовлении и сборке деталей.
Элементы лестниц (терминологический словарь)

Прежде чем начинать повествование про монтаж лестницы своими руками, давайте немного окунемся в мир терминов и понятий.
Наша задача – изучить основные детали, из которых состоит деревянная лестница:
-
– опорная балка, которая стоит под уклоном и удерживает ступени. Особенностью тетив является то, что ступени вставляются в пропиленные в теле доски пазы. – назначение аналогично тетиве, но имеется отличие в строении детали. Если в первом случае ступени устанавливались в пазы, то здесь опора выпиливается прямо на верхней грани доски, а ступени укладываются сверху. – это часть конструкции, на которую наступает движущийся человек. – это боковая декоративная часть ступени, установленная вертикально. Несущим элементом она не является, поэтому отдельные конструкции не предусматривают ее наличия вовсе. – существуют стартовые, финишные и поворотные столбы. Они являются основным несущим элементом для ограждения лестницы. Поворотные устанавливаются, если конструкция имеет более одного марша. – это держатель, на которые человек опирается при подъеме или спуске. – вертикальные элементы, которые формируют собой наполнение перил. В отличие от столбов не являются опорами, однако, прочно закрепленные, они значительно усиливают прочность всей конструкции ограждения. – первая и последняя ступень пролета. Могут отличаться от рядовых размером и формой, компенсируя остаток расстояния, при делении высоты пролета на количество ступеней. Забежные ступени изготавливаются самостоятельно непосредственно у лестницы из полотна толщиной 40 мм.
Поворотная площадка– представляет собой горизонтальную плоскость. Располагается она обычно посредине пролета, разбивая подъем на два равных участка.
Конструкции, которые мы рассмотрим сегодня, называются маршевыми. Для них характерно наличие прямых ровных участков подъема. В зависимости от высоты пролета, места под лестницу и количества этажей устраивают одномаршевые и многомаршевые конструкции.



У многомаршевых лестниц обязательно наличие поворота: на 90, 180 или 270 градусов. Градус поворота, опять-таки, зависит от пространства, в котором лестница расположена. В первых двух вариантах количество маршей равно двум, а в последнем – трем.
Чем больше поворотов, тем компактнее лестницу можно сделать. Для соединения маршей используют промежуточные площадки и забежные ступени.

Поворотная двухмаршевая лестница с поворотной площадкой
Поворотная площадка представляет собой горизонтальную плоскость. Располагается она обычно посредине пролета, разбивая подъем на два равных участка.

Деревянная лестница с забежными ступенями
Забежные ступени, словно часть винтовой лестницы, обеспечивают плавный подъем во время разворота. Располагаться они могут как посредине пролета, так и ближе к уровню первого этажа, уменьшая первый марш, вплоть до нескольких ступеней. В этом случае чаще всего разворот располагают в углу помещения.
Сама ступень представляет собой трапецию неправильной формы и монтируется вокруг поворотного опорного столба с соблюдением общей высоты подступенков и определенного градуса смещения.
Составление чертежа
Итак, нам стали известны основные элементы, из которых состоит деревянная лестница. Как вы уже поняли, собирать в данной статье мы будем именно ее. Теперь можно смело переходить к созданию чертежа.
Первым делом посоветуем обратиться вам за помощью к профессиональному проектировщику, который грамотно рассчитает количество материала, габариты конструкции, оптимальную форму и прочие конструктивные особенности. Естественно, придется тратить деньги, но иногда экономия может встать еще дороже.
Если дополнительно тратиться у вас нет возможности, то можете воспользоваться бесплатными онлайн конструкторами лестниц.
Для работы с этими инструментами от вас не потребуется специфических знаний общения с компьютером. Все предельно просто и интуитивно понятно. От вас требуется лишь точно выполнить все замеры по месту и указать их на странице расчета.

Пример онлайн калькулятора
Если общение с компьютером у вас не ладится, или его просто не оказалось в нужный момент под рукой, то вам остается сделать чертеж самостоятельно
Для этого вам потребуются:
- 1)Разлинеенная бумага – идеальны листы из школьных тетрадей по математике;
- 2)Карандаш;
- 3)Линейка;
- 4)Транспортир;
- 5)Уголок;
- 6)Ластик.
При создании чертежа всегда строго соблюдайте масштаб. Возьмите за основу, что одна клетка равна 5-ти сантиметрам, то есть ваш масштаб будет равен 1:10.
- Измерьте с точностью до полсантиметра высоту пролета и отложите его сразу на бумаге. Обязательно учитывайте толщину межэтажного перекрытия.
- Затем промерьте длину предполагаемой лестницы. Для этого опускаем вертикаль от верхнего перекрытия на пол первого этажа и рулеткой от этой метки выполняем замеры.
- Сразу определитесь с шириной марша. Для комфортного перемещения одного человека достаточно 80-ти сантиметров, для двух – 1м 20 см.
- Теперь нужно подобрать высоту подступенка. Это значение должно уместиться в промежуток от 15 до 20 сантиметров. Условие обязательное к соблюдению, если вы хотите, чтобы по вашей лестнице ходить было безопасно и удобно.
Внимание! Возможно, придется несколько раз менять значения, в поисках оптимального соотношения размеров элементов, поэтому не торопитесь делать финишный чертеж.
- Далее нужно разделить высоту пролета на выбранное значение. Допустим, у нас высота пролета равна 280 сантиметрам, а высоту ступени мы хотим 16 сантиметров. Считаем: 28016 = 17,5. Как видите цельного числа не вышло. Можете подкорректировать высоту ступени или просто округлить полученное значение в большую сторону. По результатам мы видим, что в марше будет 18 ступеней, одна из которых (а конкретно – нижняя фризовая) будет вполовину ниже остальных.
- Теперь нам нужно подобрать глубину подступенка – значение в промежутке от 25 до 33 см. К примеру, нам захотелось 28 сантиметров. Умножаем это число на получившееся количество ступеней, чтобы узнать фактическую длину марша: 28*18 = 504 см. Как видите, один марш занимает очень большую площадь, и это единственный недостаток таких конструкций.
- Если вас все устраивает, и лестница помещается в отведенное ей место, то переносим все значения на чертеж. Если нет, то пробуем подставить другие параметры, или заменить одномаршевую конструкцию на поворотную, нужной конфигурации.

Соотношение некоторых размеров проступей и подступенков с образующимися при этом углами наклона лестничного марша
- Все полученные параметры напрямую влияют на угол наклона лестничного марша. Мы представили небольшую схему, в которой показаны соотношения некоторых величин и оптимальный угол для подъема. Измерить угол на своем чертеже вы можете при помощи транспортира.
Не забывайте про то, что если вам не удается точно подобрать значения, то вы можете сыграть за счет длины верхней фризовой ступени, сделав ее меньшей или большей, а также высоты нижней. На этом чертеж можно считать готовым.
Практическая работа
Расчеты завершены и можно плавно переходить к монтажу лестницы. Начнем с подготовки
Инструменты для работы
Для того чтобы собрать отличную лестницу, мало сделать только лишь один чертеж – вам понадобятся «прямые руки» и хороший инструмент, который позволит точно подгонять детали друг под друга.
Одни из основных видов инструмента для монтажа:

Инструмент для распила деталей, который незаменим для точного перпендикулярного распила ступеней. К сожалению, на нем невозможно сделать продольный рез, но он не всегда и требуется.

Данный инструмент можно использовать для продольного грубого реза, но если дополнительно применять направляющие, то можно добиться большой точности при распиле

Шуруповерт – это незаменимый инструмент при любой работе с каркасными конструкциями из дерева. С его помощью мы будем стягивать всю лестницу на саморезы.

Если вы закупаете необработанный пиломатериал, то без рубанка вам не обойтись. Такой инструмент позволит выполнить работу быстро и качественно.

Перфоратор нужен для фиксации частей лестницы к перекрытиям и стенам из бетона и кирпича.

Фрезеровочный аппарат может пригодиться при изготовлении лестниц на тетивах, или если вы хотите заморочиться и сделать пазогребневые соединения для проступей и подступенков.

С ее помощью мы будем шлифовать крупные детали лестниц, такие как: косоуры, подступенки, проступи, доски покрытия площадки.
Сейчас мы перечислили электрический инструмент, но так же никакая работа не обойдется без обычного ручного инструмента:
- Молоток;
- Киянка из дерева;
- Ножовка по дереву с мелким зубом;
- Отвес;
- Строительный уровень;
- Набор стамесок;
- Рулетка, угольник, линейка и карандаш – для точной разметки заготовок;
- Кисточка и краскопульт для нанесения лакокрасочных материалов.
Материалы для работы
Вот мы и добрались до одного из самых ответственных моментов – подбору древесины для вашей конструкции.
- Самыми лучшими кандидатами для лестниц из отечественных пород являются дуб, клен, лиственница и ясень. Дело в том, что они намного меньше подвержены усушке, и, соответственно, короблению древесины.
- Помимо этого данные породы имеют отличные показатели по плотности, благодаря чему, они прекрасно справляются с механическими нагрузками и истиранием поверхности.
- Несмотря на дороговизну перечисленных пород, вы все равно экономите на работе, при этом не забывайте, что больший срок службы – это тоже своеобразная экономия на будущее.
- Так же для лестницы подойдут материалы из хвойных пород древесины по типу сосна, ель они не столь крепки как вышеперечисленные, но со своей задачей справляются на все 100% и являются самым популярным материалом для монтажа лестницы
- Очень важно выбрать материал с влажностью подходящей под монтаж внутренних конструкций, которая должна быть не более 15%, влажность определяют специальным прибором – кондутомером.
Основные комплектующие для летсниц: тетива(косоур), ступень, брус клееный, подступенок, столбы, балясины, поручни(перила), заглушки, шканты(нагель). О них мы рассказывали в начале статьи.
Все вышеперечисленные материалы можно приобрести в нашем магазине.
Подробнее о породах древесины можно узнать тут.
Изготовление и установка тетивы(косоур)

Данная часть работы является самой важной, так как точность в изготовлении косоуров и их монтаже скажется на геометрии всей конструкции, ровности установки балясин и будущем комфорте использования. Для начала нужно определиться, как косоуры будут соединяться с перекрытиями второго этажа и полом первого.
Существует два основных метода связки с деревянной балкой перекрытия (кстати, аналогичным образом соединяются косоуры с промежуточными площадками):
- Первый выполняется с запилом в косоуре. Наглядно это можно увидеть на представленной схеме. В балке пропиливается прямоугольный паз, в который укладывается и закрепляется вырезанный в косоуре горизонтальный шип.
- При втором, косоур не трогается, но меняется форма запила в площадочной балке – ее нижний край становится наклонным, повторяя угол самого косоура.
В обоих случаях фризовая ступень устанавливается вровень с уровнем пола второго этажа. Однако, при необходимости, можно задвинуть ступень, подняв уровень площадки.
Что делать, если нет возможности разобрать пол второго этажа, чтобы выполнить пропил, если вы забыли про этот нюанс и неправильно рассчитали форму косоура, если толщины балки не хватает для нормального пропила или если вы хотите выполнить монтаж деревянной лестницы на металлический каркас или бетонное перекрытие?
Пошаговая инструкция по самостоятельному изготовлению деревянной лестницы

В любом здании высотой больше этажа производится установка лестницы. Такая конструкция требует детального расчета всех ее комплектующих, умения работы со слесарным и столярным инструментом и некоторых дизайнерских навыков. После изучения этой инструкции вы узнаете, как проектируется и изготавливается деревянная лестница своими руками.
Устройство деревянной лестницы
Лестница из дерева для частного дома чаще всего состоит из одного или нескольких маршей (пролетов), которые располагаются между этажами или промежуточными площадками.

Устройство деревянной лестницы
Конструкция лестничного марша представляет собой комбинацию из различных составляющих с разным функциональным назначением:
- Косоур. Представляет собой несущую балку из древесины с выпиленной гребенкой. К ней фиксируются подступенки со ступенями, поэтому деталь должна быть прочной.
- Тетива. В некоторых случаях становится альтернативой косоуру, выполняя несущие функции (особенно если одна сторона конструкции прилегает к стенке). Перед установкой тетиву нужно детально разметить, чтобы ступеньки располагались на горизонтальном уровне.

- Ступень. Основной элемент любой лестницы, который крепится к одной из несущих балок. Кроме обычных, существуют забежные и радиусные ступеньки. У забежных элементов форма нестандартная и их монтируют в начальной точке марша. Радиусные ступени отличаются криволинейным передним краем, они могут быть полукруглыми, волнообразными или с закругленными углами.
- Подступенок. Деталь не является обязательной, но она обеспечивает лестнице высокую прочность, поддерживая ступень по центру. Для фиксации подступенка применяется дистанционная втулка. Под полукруглые ступеньки устанавливается радиусный тип, а выгнутый вариант монтируется под соответствующие ступеньки или под площадкой между лестничными маршами.
- Столбы для опоры. Ставятся в начальной и конечной точке лестницы, а также по краям межмаршевых площадок. Элементы повышают прочность ограждения и служат опорой поручням.
- Балясины. Это подпорные столбы для поручней, из которых формируются боковые ограждения, могут иметь разную конфигурацию.
- Поручни. Являются обязательной деталью. Они опираются на балясины и опорные столбики. Основным требованием к элементу является гладкая поверхность.
- Дистанционная втулка. Такая подставка требуется для любой конструкции с несколькими маршами (даже при применении косоуров).
Виды конструкций лестниц
При выборе лестничной конструкции основным фактором служит размер площади, необходимой для ее возведения. На втором месте стоит удобство и комфорт подъема и спуска. Здесь нужно учитывать частоту использования, наличие в доме детей и пожилых людей.

Немаловажным критерием является и эстетичность. Лестница должна сочетаться с интерьером комнаты. Кроме того, нужно учитывать материальные возможности: изготовление деревянных лестниц со сложной конфигурацией требует больших временных и финансовых затрат, чем более простых по форме и исполнению вариантов.
Маршевые
Являются наиболее популярными. Свое название получили благодаря маршам (пролетам) – группе объединенных ступеней. В лестнице может быть один или несколько маршей.
Выделяют прямые конструкции (одномаршевые и двуххмаршевые, с площадкой для отдыха). Они могут быть отдельно стоящими или размещаться около стены. Но прямые модели требуют много площади, поэтому чтобы сэкономить полезное пространство, предусматриваются двухмаршевые варианты с поворотом под углом от 90 до 180 градусов.
У марша бывает криволинейная форма с оптимальным углом подъема, тогда применяются поворотные ступеньки, которые также имеются у конструкций с двумя и тремя маршами без площадок.
Наиболее популярными видами деревянных лестниц для загородного жилого дома являются:
Для выбора определенной конфигурации следует правильно рассчитать и замерить свободную площадь для монтажа, составить чертеж. Подробное руководство о том, как это сделать, будет ниже.
Винтовые
Конструкции винтового типа применяются реже, как правило, при ограниченной площади или из эстетических соображений владельца частного дома. Они не так удобны, как маршевые, по ним сложно транспортировать мебель. Чтобы установить лестницу, нужно будет выполнить сложные подсчеты, так как при небольшой погрешности она может утратить свои функциональные способности.

Винтовые лестницы иногда выполняют просто декоративную функцию, особенно с ограждением, выполненным художественной ковкой. Устройство таких вариантов возможно практически в любом помещении, т.к. они занимают меньше места, чем конструкции с поворотом. Различают следующие типы:
- с консольным защемлением ступенек на внутреннем столбе;
- с опорой ступенек на внутренний столб и периметральные стены;
- с консольной опорой ступенек на обсадную трубу;
- с опорой на ограждение и гнутые тетивы.
Более сложными вариантами является модульные винтовые лестницы. Сборку конструкции производят из модулей, складывая их под углом в определенной последовательности. Они бывают с центральным косоуром (ступени крепятся к модулям, а края соединяются больцами) и центральной колонной (опираются на наборную колонну, соединяются больцами). Читайте подробнее о деревянных винтовых лестницах.

Винтовые лестницы позволяют экономить пространство
Виды конструкций
Перед тем как сделать деревянную лестницу, следует подобрать оптимальный вариант конструкции для своего помещения.
Существуют следующие популярные типы конструкций:
Самой простой является лестница прямой формы, которая обеспечивает прямолинейное перемещение по маршу.
Изготовление деревянной лестницы своими руками с наглядной пошаговой инструкцией рассмотрим более детально. Процесс включает в себя два основных этапа: проектирование и монтаж.
Расчеты размеров лестничной конструкции
Перед тем как приступить к проектированию, нужно сделать точные расчеты, начертить схему и нанести на нее все данные. Если нет уверенности в правильности расчетов, то лучше доверить работу профессионалам, которые сделают грамотный чертеж, что позволит поэтапно выполнить монтаж без ошибок.
Общая высота лестницы
Определить высоту можно, измеряя расстояние от пола первого до второго этажа с учетом толщины потолка. Например, если на 1-м этаже потолочная высота равна 2700 мм, а толщина межэтажных перекрытий – 300 мм. В результате суммарная высота будет равна 3000 мм.

Если чистового пола нет, то его размеры нужно заложить примерно.
Количество ступеней
Если известна высота лестницы и подступенка, можно определить число ступенек конструкции. Для этого нужно разделить один показатель на второй. Например, при общей высоте лестницы 3000 мм, а высоте подступенка – 175 мм расчет будет таким: 3000 : 175=171 мм.
После этого нужно округлить значение, в результате получится 170 мм. В таблице указан пример расчета:

Зависимость высоты ступени от их количества при заданной высоте этажа
Высота подступенка
По рекомендации специалистов оптимальная высота подступенка должна составлять 150–180 мм, фактически это размер человеческого шага. Данная высота может составлять 150–200 мм. Обычно средняя величина по нормативу равна 160-170 мм.

Оптимальный диапазон уклона лестницы выделен зеленым цветом
Ширина ступени
Чтобы не возникло травм в результате неверно подобранной ширины ступеней, нужно правильно ее рассчитать. Исходя из многолетней практики, ширина детали должна быть в пределах 220 – 400 мм.

Для определения более точного значения можно воспользоваться определенной формулой. Нужно взять среднюю ширину человеческого шага (600 – 640 мм) и вычесть из нее высоту подступенка, умноженную на 2, т.е. 640 – 2х175 = 290 мм. Этот показатель будет оптимальным для перемещения.
Ширина марша
По правилам безопасности для удобного передвижения людей пролет должен быть шириной не меньше 80 см, но лучше принять не менее 90 см. Для удобной переноски мебели этот показатель для частного жилого дома должен быть 100 – 120 см.
Длина лестницы в плане
Для расчета этого параметра нужно умножить количество ступеней и ширину проступи. В нашем примере получится 29х17= 493 см. То есть лестница выходит довольно длинной и при устройстве одного марша потребуется помещение не менее 6 метров. В небольшом срубе или деревенском доме нужно будет делать 2 марша с 90 или 180 градусным поворотом.
Между маршами монтируется площадка или ставятся поворотные ступеньки. Если не получается выполнить расчет самостоятельно, можно воспользоваться специальной программой, представленной чуть ниже, где наглядно будет отражаться локализация лестничных деталей.
Размер потолочного проема
При строительстве лестницы из деревянного массива нужно помнить о расчете проема потолка, чтобы при поднятии наверх не пришлось нагибаться. Такой показатель будет зависеть от уклона, который влияет на удобство при перемещении и подбирается индивидуально.
Оптимальным считается уклон 23-36 градусов, но часто не получается соблюсти необходимый угол из-за малой площади помещения (чем более крутым будет уклон, тем меньше площади он будет занимать).
От угла лестничного марша будет зависеть величина проема в области потолка. Так, для складной конструкции потребуется небольшой проем, а для большего уклона потребуется более значительный (до 2 м).

Размер проема в перекрытии определяется исходя из минимально допустимого значения для прохода человека
Длина косоура
Для определения длины косоура применяется формула Пифагора: (длина лестницы в плане)² (высота лестницы)²= (длина косоура)².

Определение длины косоура
То есть при длине 493 см и высоте 300 см получим следующее: L=√(4932 3002) = 577 см (показатель берется с запасом – 580 см).
Выбор материала
После того как выполнены все расчеты, нужно закупать материалы. Для этого потребуются доски разной длины и плотности: для ступенек толщина составляет 3-4 см; для подступенков – 2-2,5 см; для тетивы или косоура толщина равна 5 см, а высота – 150-250 мм. Поручни и балясины лучше купить готовые, так как для их производства потребуется токарный станок и брус размером 10х10, 15х15 см. Для фиксации комплектующих потребуются саморезы и гвозди, а также металлические уголки для усиления.
Изготовление деталей и монтаж лестницы
Технология монтажа включает в себя изготовление и установку всех элементов лестничной конструкции в соответствии с чертежом.
Сборка тетивы или косоуров
На приготовленных досках нужно отметить длину и отпилить лишнее. На бруске с помощью угольника размечают высоту подстепенка и ширину проступи с убавкой 2-4 см.

Разметка цельного косоура
Вариант изготовления косоура с кобылками
Сборка тетивы со стяжками жесткости
Выемки для ступеней выпиливают электролобзиком или пилой. Далее приставляют заготовку к месту монтажа так, чтобы нижний край упирался в пол, а верхний – в перекрытие. Запилы под ступени должны находиться горизонтально, без «завалов». После этого рекомендуется отшлифовать поверхность бруска, выполнить фрезеровку, закругляя внешние края.
Для оптимальной жесткости иногда может потребоваться 2, 3 или 4 косоура, число которых подбирается в зависимости от ширины лестницы. Иногда проще заказать готовый несущий каркас, куда будут входить все элементы с вырезами, обозначенные номерами для состыковки в соответствии со схемой.
Установка ступеней и подступенков
Подступенки монтируют в подготовленные запилы косоура, выравнивают и зашкуривают. Закрепление выполняют с помощью саморезов, которые после можно зашпаклевать или закрыть отделочным материалом.

Способы установки ступеней на косоур

Варианты крепления ступеней к тетиве
После фиксации подступенков устанавливаются заранее фрезерованные ступени, длина которых должна превышать расстояние между парой крайних косоуров на 1-2 см. Ширина элементов должна быть на 2-3 см больше гребеночного выступа. Крепление ступеней к подступенкам и косоурам осуществляется на саморезы, шляпки которых должны быть утоплены в дерево.

Крепление косоура к верхнему перекрытию. Способы соединения элементов лестницы.

Крепление косоура к полу
Монтаж ограждений
Придать конструкции завершенный вид можно с помощью вспомогательных деталей. Для этого могут применяться резные, прямые, фигурные деревянные и металлические ограждения.

Схема крепления ограждений
Установка столбов с балясинами считается сложной задачей, где требуется точная разметка с подгонкой. В ступеньке отверстие для шканта размечается на расстоянии от края, равном ½ ширины основания балясины. Затем на ступенях делают отверстия и вклеивают в них шканты (они должны выступать на 1-1,5 см от поверхности).

Крепление балясин на шканты
После этого по диаметру шканта надо сделать отверстия в основе столбов и балясин, промазать их клеем. Все элементы насаживают на шканты с регулировкой по вертикальному уровню. Далее подготавливают поручни, обрезая края под нужным углом и фрезеруя их с нижней стороны. Для стыковки с опорами на срезе элемента высверливают отверстия. Поручень устанавливается на вклеенный в опорный столб шкант.

Крепление балясин с перилами
Далее балясины промазываются клеем, а сверху на них укладываются поручни в паз. И хотя фиксация в паз довольно надежна, рекомендуется зафиксировать стык тонкими саморезами.
После высыхания клея лестницу нужно покрыть антисептической грунтовкой, затем поверхность обрабатывается прозрачным лаком или краской. Можно поставить декоративный плинтус. В винтовой лестнице можно выполнить оформление осевой опорой в виде бревна или балки, установить гнутую тетиву для опоры ступенек. Цена такой конструкции будет высокой, так как в производстве применяется вязкая гибкая древесина, но финальный эффект того стоит.
Как собрать деревянную лестницу: подробная инструкция и схемы
Лестница в доме всегда должна быть удобной и безопасной, поэтому важно знать ее основные элементы и уметь их устанавливать или ремонтировать.
Деревянная лестница между этажами является не только украшением интерьера, но и позволяет комфортно перемещаться по дому. Дадим инструкцию по изготовлению и сборке лестницы из древесины своими руками.
Преимущества деревянной лестницы:
- доступная цена;
- экологически чистый материал;
- долговечность, надежность и прочность;
- не дает большую нагрузку на несущую конструкцию;
- простая эксплуатация и ремонт;
- разнообразие видов и форм.
Основные элементы деревянной лестницы

Виды лестниц
Перед сборкой и установкой деревянной лестницы нужно сделать проект конструкции. А для этого необходимо знать основные виды деревянных лестниц по способу сооружения:
- Маршевая лестница. Это простая и безопасная конструкция, которая состоит из непрерывного ряда ступеней (маршей). Бывает как прямой, так и с несколькими поворотными площадками. Лестница такого типа не подойдет для небольших помещений, так как занимает много места.
- Винтовая лестница. Лестницу этого вида используют для небольших помещений или в эстетических целях. Конструкция имеет крутой подъем и поэтому небезопасна для спуска. Винтовую лестницу сложно построить самому, так как нужен точный расчет высоты и диаметра.
Выбор материала
Для изготовления деревянной лестницы важно правильно выбрать материал. Он должен быть прочным и долговечным, а это зависит от плотности и твердости древесины. Чем еще руководствоваться при выборе пиломатериалов рассказано в этой статье.
- Ель или сосна. Эта древесина не подходит для изготовления ступеней, так как не выдерживает постоянных механических нагрузок. Подойдет для изготовления подступенок или балясин.
- Лиственница. Лестница из лиственницы не дает усадку, долговечна после обработки антисептиком и устойчива к повышенной влажности. Подходит для обустройства маршевых лестниц для загородного дома, дачи или домов с постоянным отоплением.
- Дуб. Это твердая и влагостойкая древесина, которая не подвержена образованию грибков и плесени. Лестницу из дуба можно устанавливать как на улице, так и внутри дома.
- Ясень. Лестница из ясеня не растрескивается в процессе эксплуатации и не деформируется. Эта древесина подойдет для изготовления тетивы, ступеней, поручней в домах с отоплением.
- Бук. Износостойкая древесина, которая легко гнется и склеивается. Подходит для изготовления ступеней, балясин и поручней. Лестницу из бука нужно обязательно покрывать лаком или краской.
Подробнее о сортах древесины и разновидностях пиломатериалов вы можете узнать здесь.
Что понадобится для сборки лестницы?
Для самостоятельного изготовления лестницы на второй этаж советуем выбрать традиционную конструкцию с прямым маршем на тетивах. Сборка лестницы из пиломатериалов осуществляется при помощи следующих деталей:
- несущая основа (тетива);
- ступени;
- подступенки (вертикальные части ступеней);
- опорные столбы;
- перила с балясинами и поручнями.
А чтобы сделать винтовую лестницу, вам дополнительно понадобится металлическая труба или деревянный столб для изготовления опоры, а также поворотные поручни.
Проектирование лестницы
Правильный расчет параметров лестницы позволит сделать ее монтаж быстрым, а саму конструкцию прочной и долговечной.
- Общая высота. Для определения высоты лестницы нужно замерить расстояние от чистового пола на нижнем этаже дома до напольного покрытия верхнего этажа с учетом высоты межэтажного перекрытия. Горизонталь и вертикаль проверяют при помощи строительного уровня.
- Ширина ступеней. Этот параметр должен быть в пределах 27-32 см; стандартная ширина ступеней лестницы — 30 см.
- Высота подступенка. Оптимальная величина подступенка — 15-20 см.
- Количество ступеней. Для расчета нужно поделить высоту лестницы на высоту одного подступенка и округлить в большую сторону, если получится дробное число.
- Общая ширина лестницы. Для пожарной безопасности и удобного подъема этот параметр должен быть в диапазоне 80-120 см.
- Размер проема межэтажного перекрытия. Этот параметр равен общей ширине лестницы. Обычно высота проема — от 2 м, а ширина — от 1 м.
- Угол наклона лестницы. Определяется числом ступеней. Оптимальный диапазон соответствует 35-40 градусам.
- Высота перил. Минимальная безопасная высота ограждений — 90 см.
Схема сборки ограждения деревянной лестницы

Монтаж лестницы
Установка маршевой лестницы начинается с крепления несущих конструкций — тетивы и косоуров. Тетиву изготавливают из балок (обрезная доска 50 мм) с прорезями для ступеней и закрепляют к стене анкерами или саморезами с шагом 30-50 см. На тетиву наносят разметку по шаблону из фанеры, чтобы учесть параметры ступеней.
Затем стамеской или фрезерным станком выпиливают прорези на половину толщины доски или насквозь. Косоуры скрепляют между собой поперечными балками, а к стене крепят при помощи дюбелей.
Монтаж подступенков и ступеней на тетиву происходит поэтапно:
- Подготавливают ступени нужного размера и зашкуривают их.
- Торцы ступеней и пазы в тетивах промазывают столярным клеем.
- Ступень ставят в паз и прижимают.
- После высыхания клея ступени дополнительно фиксируют шурупами, саморезами или гвоздями.
- Ступени на косоуры крепятся саморезами с фронтальной стороны лестницы.
Варианты обустройства ступеней деревянной лестницы

Сборка ограждения — завершающий этап установки лестницы. После возведения лестничного пролета устанавливают опорные столбы и балясины между ними. Балясины монтируют на подступенки анкерами или шкантами. Выравнивают высоту балясин в соответствии с уклоном лестницы и привинчивают к ним поручни.
Чем покрасить лестницу?
После монтажа всех элементов лестницы и высыхания клея можно приступать к ее покраске или лакировке. Сначала нужно прогрунтовать все деревянные элементы. Это позволит ЛКМ равномерно распределиться по поверхности без пятен или изменения цвета.
Красить нужно в 2-3 слоя обязательно после высыхания предыдущего слоя. Деревянные лестницы чаще всего красят:
Советы по монтажу и установке лестниц из дерева на второй этаж

Деревянная лестница может быть, как в классическом, так и в более современном стиле.
Монтаж деревянной лестницы – долгий и ответственный процесс. Некорректный расчёт или неправильная установка деталей способна значительно снизить надёжность и долговечность конструкции. По этой причине монтаж деревянных лестниц должен проводиться в определённом порядке, соблюдая определенные правила. Перед сборкой деревянной лестницы своими руками нужно тщательно просчитать все этапы.
Терминология
Монтаж лестницы на второй этаж своими руками проходит поэтапно: сначала монтируются одни элементы, к ним присоединяются вторые, затем третьи, четвёртые и т. д. Поэтому перед монтажом стоит ознакомиться с названиями деталей лестницы:
- ступеньки – элементы по которым происходит спуск или подъём;
- проступь – горизонтальная часть ступени;
- подступенок – вертикальная деталь ступеньки;
- косоур – несущая балка, на которую ступени устанавливаются сверху;
- тетива – несущий элемент с вырезами для ступеней;
- перила – ограждение лестницы, препятствующее падению;
- балясина – вертикальная составляющая перил (проще говоря – столбик);
- поручень – горизонтальная часть перил;
- площадка – свободное пространство, разделяющее лестницу на второй этаж на 2 или более части;
- опорный брус (т. н. нулевая ступень) – балка или перекладина, в которую упираются несущие элементы;
- стойка – основной несущий элемент винтовой конструкции.
Типы конструкций
Надёжность, долговечность и удобство использования лестницы на второй этаж во многом зависят от формы конструкции.
В современном мире особой популярностью пользуются винтовые и маршевые изделия.
Отличительная черта винтовых конструкций – это радиальный тип расположения ступеней. То есть, ступеньки крепятся вокруг стойки (центральной оси) и поддерживаются с другой стороны вспомогательными элементами (стеной или несущими балками). Однако проектирование и установка таких конструкций отличается особой сложностью, да и удобство использования винтовой лестницы оставляет желать лучшего.
Гораздо чаще встречаются маршевые лестницы. Они более надёжны и комфортны для эксплуатации. Единственный их недостаток – высокие требования к свободному пространству. Тем не менее, удобство использования, надёжность и хорошая ширина пролёта сделали маршевые разновидности самыми популярными на рынке лестничных конструкций. Построить такую лестницу гораздо проще винтовой, даже если говорить о создании конструкции с несколькими маршами и площадкой.
Подготовка к работе
Установка лестницы на второй этаж – долгий и затратный процесс. Чтобы его максимально облегчить, необходимо как следует подготовиться.
Для большего удобства, подготовительные работы перед обустройством деревянной лестницы на второй этаж своими руками можно разделить на 3 стадии:
На первом этапе необходимо изготовить максимально качественную схему. Для большей информативности, её следует выполнить в трёх проекциях: сверху, сбоку и спереди. При этом на виде сверху необходимо указать локализацию и направление лестничного пролёта. Создание чертежа обычно выполняется на чертёжной бумаге.
Совет!
Если вы предпочитаете работать за компьютером, в интернете найдется пара-тройка удобных и совершенно бесплатных программ для проектирования лестниц и других конструкций.
Проектируем лестницу в программе «Компас»
Следующий этап довольно прост – исходя из расчётов, закупаются расходные материалы в необходимом количестве. При этом лучше не поскупиться и приобрести материалы с запасом.
Также для монтажа лестницы на второй этаж потребуется определённый инструментарий. В частности:
- карандаш;
- уровень;
- угольник;
- струбцина;
- рубанок;
- молоток;
- дрель или шуруповёрт;
- шлифовальная машина;
- пила;
- крепёжные элементы (обычно используются саморезы по дереву).
Порядок установки
После подготовительных работ, можно приступать к установке конструкции. Как было сказано выше, монтаж лестницы проходит в определённом порядке.
Несущие балки
В первую очередь следует изготовить вырезы для ступеней. Если планируется установить лестницу на тетивах, необходимо на каждой опорной балке сделать вырезы для ступеней (минимальное расстояние от края – 5 см). Следует учитывать, что пазы двух опорных элементов должны располагаться друг к другу зеркально.

Перед непосредственным вырезанием ступеней необходимо сделать разметку и перепроверить все расчеты.
Создание вырезов на косоурах происходит иначе:
- балка делится на 2 равные части;
- в верхней половине с помощью уголка и в соответствии с чертежом отмечаются будущие вырезы;
- отмеченные выемки выпиливаются;
- повтор п. 1-3 для другой балки.
Следующий шаг – монтаж опорного бруса в месте, где будет начинаться лестница на второй этаж. Чтобы соединить брус и несущие балки, можно пойти двумя путями:
- сделать вырез в балке;
- изготовить в опорном бруске небольшие пазы, в которые будут вставлены балки.
Наконец, можно приступать к установке косоуров:
- в месте, где завершается лестница, установить брусок и закрепить его стальными анкерами;
- соединить несущие элементы с бруском на втором этаже;
- плотно прижать косоуры к опорному бруску на полу;
- закрепить брусок стальными анкерами.
Монтаж лестницы на тетивах происходит иначе. Здесь сначала вставляются ступени, а лишь затем конструкция придвигается к стене и фиксируется на опорных брусках.
Ступени
После прочной фиксации несущих балок, можно перейти к установке ступенек. При создании лестницы на косоурах, длина ступеней должна совпадать с шириной пролёта. Если же в качестве несущей балки используется тетива – расстоянию между пазами, включая глубину отверстия.
В первую очередь следует установить подступенки – вертикальную часть ступенек. Для этого можно использовать саморезы либо специальный клей.

Крепление подступенков при помощи саморезов.
Важно!
Фиксация обязательно должна быть надёжной.
Прежде чем перейти к монтажу проступей, их следует сначала изготовить и как следует обработать поверхность шлифовальной машинкой. Устанавливаются же они аналогично – с помощью саморезов или с использованием клея. Стоит отметить, что для большего удобства при подъёме, проступи должны выступать вперёд над вертикальными элементами на 2-3 см.

Клея должно быть достаточное количество, чтобы конструкция была надежной и не скрипела.
Монтаж ступенек в лестницу на тетивах происходит следующим образом:
- пазы первой тетивы смазываются клеем;
- в обработанные отверстия вставляются ступени;
- клеем обрабатываются углубления второй тетивы и балка соединяется со ступенями.
Перила
Во время спуска или подъёма по лестнице люди часто опираются на перила. Поэтому ограждения должны быть надёжно зафиксированы и выдерживать немалую нагрузку.

Перила должны быть не только надежными, но и прекрасно вписываться в общий дизайн помещения.
Установка перил начинается с подготовительных работ:
- В местах соединения ступеней с несущей балкой отмечаются места для установки балясин. При этом боковая грань столбика должна совпадать с латеральным концом ступеньки.
- В отмеченном месте делается отверстие нужного диаметра.
- Изготавливается небольшой деревянный шкант. Диаметр стержня должен соответствовать ширине отверстия, а по длине шкант должен выступать над поверхностью ступеньки на 1-1,5 см.
- В нижней и верхней части каждой балясины делаются отверстия, соответствующие диаметру шканта.
Разметка места под балясины
Затем можно приступать к установке:
- монтируются опорные столбы в начале и конце лестницы на второй этаж;
- устанавливается 1-2 промежуточные балясины (не на шканты!);
- проверяется соответствие угла наклона через прикладывание к балясинам поручня (при необходимости корректируется высота столбиков);
- в углубления сверху вставляется шкант для фиксации поручня;
- основание и углубления балясин смазываются клеем;
- столбики устанавливаются на шкантах;
- смазывается клеем верхний стержень балясины;
- поручень плотно прикладывается и фиксируется на балясинах.
Стоит отметить, что монтаж лестницы на тетивах имеет существенные отличия. Рекомендуем вам ознакомиться со статьей установка лестницы на тетивах.
Монтаж винтовой лестницы: краткое описание
Так как форма винтовой конструкции отличается от маршевых разновидностей, принцип установки здесь иной. Устанавливать такую лестницу на следующий этаж рекомендуется в следующем порядке:
- составляется чертёж;
- исходя из расчётов, изготавливаются элементы конструкции;
- в выбранном месте устанавливается и крепится к полу нижний опорный узел;
- в узел вставляется вертикальная стойка;
- в штативе защемляются (либо надеваются на него) ступени;
- на уровне пола второго этажа устанавливается площадка и закрепляется опорный стержень;
- в отверстия на ступенях вставляются балясины, на которые надеваются перила.
Монтаж готовой винтовой лестницы
Монтаж деревянной лестницы требует от мастера аккуратного подхода и внимательности. Неправильный расчёт или не качественная фиксация элементов может негативно сказаться на прочности и долговечности конструкции. По этой причине сборка лестничной конструкции должна выполняться с особым вниманием.
Ксения Скворцова. Главный редактор. Автор.
Планирование и распределение обязанностей в команде контент-производства, работа с текстами.
Образование: Харьковская Государственная Академия Культуры, специальность «Культуролог. Преподаватель истории и теории культуры». Опыт работы в копирайтинге: С 2010 года по настоящий момент. Редактор: с 2016 года.
Лестница на даче своими руками: виды. Установка маршевой конструкции
Если вы планируете построить двухэтажный дачный домик, то не в последнюю очередь вам следует задуматься о лестничной конструкции. Лестница — не только функциональный элемент, но и важная часть интерьера, поэтому при проектировании вам следует учитывать как размеры и конструкционные особенности, так и её внешний вид. Она должна быть максимально удобной, иначе перемещение меду этажами станет для вас настоящей мукой.
В данной статье мы поговорим о том, как сделать лестницу на даче своими руками.

На фото – деревянная маршевая лестница.
Самостоятельная установка лестничной конструкции
Строительство лестниц на даче предусматривает проведение ряда расчетов, чтобы определить наиболее удобный тип конструкции и подобрать материалы для её изготовления.
На сегодняшний день наиболее востребованными являются такие лестницы:
- Маршевая.
- Винтовая.
- На больцах.
- Утиный шаг.
Рассмотрим их более подробно.
Виды лестниц
- Маршевая лестница. Является наиболее популярной, поскольку представляет собой прямое лестничное полотно с перилами. Особенности:
- Состоит из маршей, каждый из которых в среднем насчитывает 8-10 ступеней.
Совет! Количество лестничных ступеней в одном марше не должно превышать 15. Большее их число сделает процесс восхождения более утомительным. Поэтому желательно разделить чересчур длинный марш на 2 части, установив посередине небольшую платформу, равную двум ступенькам.
- Угол наклона полотна должен составлять 40-45 градусов.
- Двухмаршевая конструкция может устанавливаться под углом, что позволит сэкономить место.
- Винтовые лестницы представляют собой деревянную или металлическую стойку с закрепленными на ней ступенями. Ступеньки винтовой металлической лестницы сужены с одной стороны, и этим узким краем они укрепляются на стойке.
Совет! Такая конструкция является менее удобной, чем маршевая, однако занимает значительно меньше места. Не лучший вариант для дома, где проживают пожилые люди и маленькие дети.
Винтовая лестница на даче имеет такие особенности:
- Компактность – достаточно проема в 1 метр.
Совет! Учтите, что чем меньшим будет проем, предусмотренный для лестницы, тем круче будет подъем.
- Часто устанавливаются в качестве вспомогательных элементов, обеспечивающих сообщение цокольного этажа с первым или же жилого помещения с чердаком.
- Для удобства перемещения необходимо, чтобы центральная ширина ступени составляла 20-25 см, а самая широкая часть была не более 40 см.
- На больцах.
Такая лестница на второй этаж на даче является, пожалуй, наиболее изящным вариантом. Она является будто невесомой, при этом её марши могут быть как прямыми, так и иметь изогнутую форму. Крепление осуществляется на болтах (больцах), что требует от вас определенных навыков.
Совет! Конструкции на больцах обязательно должны примыкать одним краем к стене, поскольку именно на неё в данном случае приходится основная нагрузка.
- Утиный шаг. Пожалуй, самая крутая, но и самая компактная конструкция, особенности которой заключаются в следующем:
- Угол наклона для полотна составляет 65-75 градусов.
- Особая конструкция ступеней, предназначенных под определенную ногу: первая для правой ноги, вторая – для левой и так далее. Они либо половинчатые, либо имеют вырез с одной стороны.
- Чаще всего имеет один марш.
- Может быть как прямой, так и поворотной.
Совет! В случае с поворотной лестницей вы должны согласовать поворот с чередованием ступенек. Поворот осуществляется в противоположную от опорной ноги сторону.

Утиный шаг.
Устанавливаем маршевую лестницу
Сравнив все преимущества и недостатки вышеперечисленных конструкций, можно сделать вывод, что маршевые деревянные лестницы на даче устанавливаются наиболее часто, поскольку являются простыми в изготовлении и сборке. Они также удобны и надежны.
К тому же, под маршем нередко располагается кладовка или какое-либо небольшое помещение. Некоторыми умельцами создается даже полноценная кухня под лестницей на даче.
Осуществление расчетов
Установка лестницы осуществляется в несколько этапов, и первым из них является точный расчет будущего изделия. В качестве материала для работы лучше всего выбрать древесину, так как её отличает невысокая цена, простота в обработке и долговечность.
Итак, расчет производится по такой инструкции:
- Для начала необходимо определиться с шириной марша. Средние параметры составляют 1-1,5 метров.
- Измеряем высоту потолка.
- Теперь необходимо определить длину конструкции. В данном случае ориентироваться необходимо на высоту потолка, учитывая при этом угол наклона в 45 градусов. К примеру, высота потолка составляет 3 метра, тогда длина лестницы должна быть 3,5 м.
- Определяем длину лестничного полотна, что необходимо для того, чтобы рассчитать количество ступеней.
Это можно сделать двумя способами:
- Измерив рулеткой расстояние от верхней ступеньки, которая будет располагаться на пересечении стены с потолком до нижней.
- Представив длину и высоту конструкции в виде катетов прямоугольного треугольника, находим гипотенузу, которой и будет являться длина лестничного полотна.
- Подсчет количества ступеней. Для этого делим длину лестничного полотна на длину ступеньки (18 см).
- Для того чтобы определить высоту ступеньки, нужно разделить длину полотна на общее количество ступеней.
Подготовка к монтажу
Перед непосредственным осуществлением работ необходимо проверить прочность перекрытий, оценив качество пола. В идеале перекрытия должны быть рассчитаны на нагрузку, которая на 20% превышает планируемую.
В случае неправильных расчетов опорные конструкции могут попросту обрушиться, чему есть несколько объяснений:
- Неправильная лестничная конструкция.
- Большой вес.
- Недостаточность несущих элементов или точек опоры.
- Материалы пола обладают низкой прочностью.
Монтаж лестницы

Установке косуоров, подступенков и проступей. Крепление осуществляется при помощи саморезов с использованием шуруповерта.
Инструкция по установке лестницы на даче своими руками предусматривает осуществление следующих этапов:
- Определившись с видом лестницы, вам следует выбрать для неё место в доме. Если помещение является просторным, то вы можете создать удобную и широкую лестницу прямо в центре комнаты. Она придаст вашему жилью изысканности и величественности. Если же пространства недостаточно – следует рассмотреть пристенный вариант.
- Создаем проект, рассчитывая лестничные марши и другие элементы.
- Закупаем материалы, или же нанимаем для этого представителя специализированной компании.
- Устанавливаем косуоры, формируя марши. Расстояние между ними должно соответствовать ширине проступей и подступенков. Фиксация косуоров осуществляется посредством саморезов к стене и полу.
- Устанавливаем подступенки, фиксируя их саморезами.
- Устанавливаем проступи.
- В том случае, если речь и дет о многомаршевой конструкции, необходимо установить промежуточную площадку между маршами.
- Теперь монтируем ограждение. Сначала устанавливаем балясины, монтируя их в паз с использованием металлических шпилек.
- Устанавливаем промежуточные стойки, а также крайние столбы, которые необходимо закрепить при помощи анкеров на капитальной стене.
- Поверх стоек монтируем перила. Чаще всего для этого используются саморезы.
Заключение
Деревянную лестницу можно изготовить, собрать и установить самостоятельно, не переплачивая при этом за услуги специалистов. Как видите, ничего сложного в этом нет, нужно лишь произвести грамотные расчеты и ответственно подойти к процедуре изготовления и установки изделия. В представленном видео в этой статье вы найдете дополнительную информацию по данной теме (узнайте также как правильно рассчитать лестницу для дома).






