{RANDOM_PARAGRAPH=100-400}
Выбираем ворота для дачи и гаража. Что надо знать? на сайте Недвио
Прошли времена, когда ворота в дом или гараж выполняли чисто защитную функцию. Сегодня, среди домовладельцев, на первый план вышли другие их качества: внешний вид, долговечность, удобство в эксплуатации…
Да, разумеется, ворота, в первую очередь, ставятся для защиты дома и участка от посторонних. Однако если бы все ограничивалось только этим, у всех бы домовладельцев стояли бы стандартные распашные ворота из металлического листа.
Конечно, металлические ворота стоят дешево, и это первое, что приходит на ум, при строительстве дачи. Однако у них есть немало минусов: «так себе» вид, необходимость постоянно их толкать и применять физическую силу, а зимой — регулярные проблемы с примерзанием и снегом.
Внешний вид и качество ворот являются показателем наличия вкуса и статуса хозяина коттеджа. Так что, при строительстве и обустройстве своего дома, не стоит спешить и ограничивать себя стандартными решениями. Давайте рассмотрим какие еще типы ворот предлагает рынок. В этой статье мы расскажем о том, чем отличаются различные типы, какие ворота лучше установить для участка, а какие — для гаража, и какие нюансы рекомендуется учесть.
Виды въездных ворот для загородных участков
![]()
Въездные ворота делят на несколько типов в зависимости от того, каким способом открывается створка. В загородных домовладениях чаще всего встречаются:
- распашные ворота (они же створчатые или сдвижные);
- откатные ворота (они же раздвижные);
- складывающиеся (они же фолдинговые).
Виды раздвижных ворот
Большой востребованностью пользуются раздвижные конструкции, которые экономят много места и очень практичны в повседневном использовании. Их устанавливают на частной собственности, в общественных учреждениях, в промышленных зонах и на других площадках.
Изделия в основном изготавливаются из стали, иногда из алюминия (однако этот вариант является более дорогим). Наименее распространенные — чугунные. Раздвижные изделия лучше всего заказывать индивидуально, чтобы правильно отрегулировать их по высоте, ширине и подобрать подходящий тип наполнения для используемого забора.

Есть два типа раздвижных ворот: рельсовые и автоматические (управление раздвижными конструкциями обеспечивается с помощью дистанционного устройства, в случае сбоя оборудования затвор можно открыть вручную, разблокировал механизм с помощью рычага, установленного на корпусе стойки).
Встречаются и другие типы:
- Двухстворчатые.
- Одностворчатые. Чаще всего раздвижные изделия имеют только одно крыло, которое перемещается вдоль забора с его внутренней стороны.
При выборе приспособления второго типа следует учитывать, что участок возле ограждения с одной стороны должен быть достаточно длинным, чтобы после перемещения все крыло могло поместиться в нем. Если забор не позволяет установить одностворчатые раздвижные ворота, a вход расположен в середине забора, то оптимальным вариантом в этом случае будет установка открывающихся в противоположных направлениях двух более узких крыльев. Однако такая конструкция встречается редко.
Участок

Садовый участок начинается с ворот или калитки. Красивые ограждения выполняют одновременно несколько функций: удерживают людей и домашних животных от вытаптывания растений, препятствуют проникновению на участок посторонних и выступает своеобразной визиткой сада.
Основные требования к устройству садовых ворот
Садовые ворота в большинстве случаев представляют собой небольшие сооружения. Ширина такой конструкции составляет порядка одного метра, иногда – полтора. Через ворота должен спокойно проходить один человек, проезжать велосипед, коляска и беспрепятственно помещаться садовое оборудование. Въездные ворота, в отличие от садовых, имеют ширину около трех метров – сквозь них может свободно проехать автомобиль.

При создании садовых ворот необходимо соблюдать ряд требований:
- высота ворот не должна превышать 180 см;
- размеры ворот/калитки задаются с учетом высоты забора;
- если вдоль забора проложен водосток, то надо вдоль ворот/калитки обустроить специальный жалоб;
- важное условие надежности и долговечности ворот – прочность опорных столбов, они должны выдерживать вес садового ограждения, ветровые нагрузки и другие природные условия;
- эстетический внешний вид и соответствие ландшафтному дизайну сада.
Выбирая садовые ворота надо оценить преимущества и недостатки разных моделей оград. Все ворота классифицируют по двум основным признакам: особенностям конструкции и материалу изготовления.
Конструкции садовых ворот: характеристики и особенности эксплуатации
По типу открывания ворота делятся на распашные и откидные. Наиболее популярный первый вариант – ворота распашные садовые. Эта модель считается классической и имеет ряд существенных плюсов:

- простота конструкции и надежность;
- удобство эксплуатации и ремонтопригодность;
- привлекательный внешний вид;
- возможность подключения автоматического привода для регулировки положения сворок дистанционно;
- доступная стоимость изготовления своими руками или покупки готовой модели – конструкция не включает сложных и дорогостоящих механизмов.
Садовые ворота откатные незаменимы в тех случаях, когда нет места для распахивания створки. Полотно ворот перемещается параллельно самому забору. Основа конструкции – консоль и скрытый механизм на роликах. Благодаря роликам ворота закрываются/открываются без труда. Дополнительные плюсы конструкции:
- обшивку полотна можно выполнять из любого листового материала: дерева, профнастила, поликарбоната, сайдинга, алюминия и т.д.;
- работу ворот легко автоматизировать;
- компактность конструкции;
- в зимний период нет необходимости расчищать пространство от снега для открытия ворот;
- правильно установленное полотно ворот выдерживает сильные порывы ветра.

Надо учесть, что откатные конструкции имеют и некоторые недостатки:
- для сооружения ворот понадобится приобрести специальный комплект (направляющая рейка, роликовые опоры, поддерживающие ролики и т.д.), а это дополнительные расходы;
- надо следить за чистотою роликовых опор;
- для отката панели ворот требуется свободное место вдоль забора – там не должны расти деревья, цветы, располагаться скамейки и т.д.
Немаловажный момент – тип обшивки ворот. Садовые ограждения бывают решетчатого типа и глухие.
Решетчатые ворота обычно устанавливаются на дачных участках. Через такую конструкцию просматривается сад, в то же время ограждения препятствует проникновению посторонних на участок. Преимущества решетчатых ворот:
- эстетичный внешний вид;
- решетчатое полотно, как правило, стоит дешевле «глухого»;
- ворота не создают тень и не боятся ветровых нагрузок;
- решетчатые конструкции более универсальны – они подходят под многие стили оформления участка.

По мнению некоторых садоводов, единственный недостаток решетчатых ворот – их прозрачность. Этого минуса лишены глухие конструкции, состоящие из сплошного без отверстий полотна. Приусадебная территория не просматривается за глухим ограждением – создается дополнительное ощущение уюта и комфорта. Чтобы ворота смотрелись более органично на фоне ландшафтного дизайна сада, их украшают различными декоративными элементами.
Интересный вариант – калитка смешанного типа. Как правило, конструкция таких ворот включает сплошной низ и полупрозрачный решетчатый верх. С их помощью удастся предотвратить просматривание участка и снизить силу ветра.
Виды садовых ворот
Декоративные калитки: металлические и деревянные
Для визуального разграничения придомовой территории и сада часто устанавливают декоративные калитки. Большинство вариантов достаточно просто изготовить самостоятельно.
Садовая калитка из деревянного штакетника включает такие элементы: установочные столбики, подкосы, перекладины, штакетины, металлические/деревянные петли и брусья для обвязки.

Основной несущий элемент конструкции – столбы. На них фиксируются петли и навешивается створка калитки. Обычно столбы изготовляются из тех же материалов, что и калитка. Кроме того, опорные столбы возводят из бетона или кирпича. Установку металлических столбов выполняют из труб квадратного/прямоугольного сечения размером не менее 100*100 мм.
Важно! Во время монтажа опорных столбов их нижняя часть обязательно должна обрабатываться защитным покрытием – битумным составом. Эта мера убережет металл от появления коррозии и разрушения
Деревянные опоры лучше изготовлять из твердых древесных пород: каштана, дуба, лиственницы. При использовании ели или сосны столбики надо обработать антисептиком, а затем покрасить. Важное условие длительного срока эксплуатации – регулярное обновление слоя краски.
Более трудная и кропотливая работа, занимающая дополнительное время, – устройство опорных столбов из кирпича. Для надежной фиксации опор надо заложить фундамент глубиною минимум 0,5 м. Относительно периметра столба выступ фундамента должен составлять не менее 0,15 м. Опорные столбы из бетона приобретаются уже готовые.

Очень просты в изготовлении металлические калитки из сетки рабицы или профнастила. Для ее сооружение понадобится минимум материалов и инструментов:
- металопрофиль 20*40 мм, сетка-рабица размерами ячеек – 60*60 мм или лист профнастила;
- сварочный аппарат, болгарка или ножовка по металлу.
Садовые калитки с арками
Существует масса способов, позволяющих украсить и подчеркнуть индивидуальность загородного участка. Одним из популярных вариантов среди садоводов и дачников являются калитки с арками. Такая конструкция садовых ворот придает участку ореол изысканности и романтики.
Перечислим основные типы арок для садовых ворот. По форме традиционно арки бывают дугообразные или в виде буквы П. Для создания арки над калиткой используются разнообразные материалы. Она может вырезаться из дерева или, следуя деревенскому стилю, изготавливается из изогнутой жерди.

Более сложные, эффектные калитки с арками выполняются из кованого металла с растительными, геометрическими или другими орнаментами.
Фундаментально смотрятся каменные арки. Калитка в таком случае изготавливается из дерева или металла с элементами художественной ковки.

Ландшафтный дизайн сада гармонично дополнит калитка с цветочной аркой. Вьющиеся растения обвивают решетчатые деревянные или металлические конструкции. Из декоративных кустарников и цветов чаще высаживают: плетистую розу, плющ, девичий виноград и клематисы.
Ворота в японском стиле
Для приусадебного участка, выдержанного в строгом восточном стиле подойдут японские ворота. На протяжении многих веков этот элемент сооружения играет важную символическую роль, оставаясь главной деталью японского сада.
Символ Японии – ворота тории, имеет простую конструкцию. На двух деревянных стойках располагаются две перекладины. В качестве основы сооружения обычно используют дерево. Для крыши подойдут следующие материалы: железо, медь, тес, массивная и мелкая черепица.

Специалисты по ландшафтному дизайну советуют добавить в оформление сада восточных ноток и обыграть ворота с помощью декоративных растений:
- высадить вдоль ограждения морозоустойчивые сорта бамбука;
- можно экспериментировать с многолетними кустарниками разных оттенков, если они в пределах единой цветовой гаммы;
- в качестве ярких пятен подойдут кустарники с пышным цветом: айва японская, дейция, барбарис или бересклет;
- возле японских ворот всегда уместно будут смотрется камни – это может быть дорожка, усыпанная щебнем или мелким гравием, рокарий или сад камней.
Рекомендации по выбору ворот для сада
Выбирая садовые ворота необходимо обратить внимание на некоторые аспекты:
- Общая стилистика сада. Для современного, структурированного сада подойдут кованные, металлические ворота. Очаровательный сад во внутреннем дворике лучше дополнить небольшой калиткой из деревянного штакетника. Деревянный забор, ворота садовые отлично подойдут участку, выдержанному в стиле кантри. Каменная арка над калиткой подчеркнет натуральность пейзажного сада.

- Необходимость обслуживания ограждающих элементов. Некоторые материалы (древесина) требуют регулярного ухода – перекраски, герметизации и т.д. Калитки из кованого металла, каменные арки фактически не нуждаются в обслуживании.
- Стоимость ворот. Не совсем рационально покупать самые дешевые, недолговечные конструкции. Однако не стоит и гнаться за высокой ценой. Определиться с оптимальным вариантом поможет квалифицированный специалист по ландшафтному дизайну.
Как сделать ворота в садовый участок
Деревянные садовые ворота
Для изготовления ворот из дерева достаточно иметь небольшие навыки выполнения столярных работ. Сооружать ограждения лучше из дуба, лиственницы или кедра – такая древесина устойчива к воздействиям окружающей среды.
Перечень необходимых материалов и инструментов:
- доски/штакетник;
- опорные столбы (металлический профиль или брус);
- уголки и петли;
- наждак, рубанок, стамеска;
- электролобзик или ножовка
- дрель и шуруповерт;
- молоток;
- веревка, строительный уровень, рулетка.
Первым делом необходимо подготовить доски – пропитать влагостойкой грунтовкой, которая убережет древесину от преждевременного гниения.
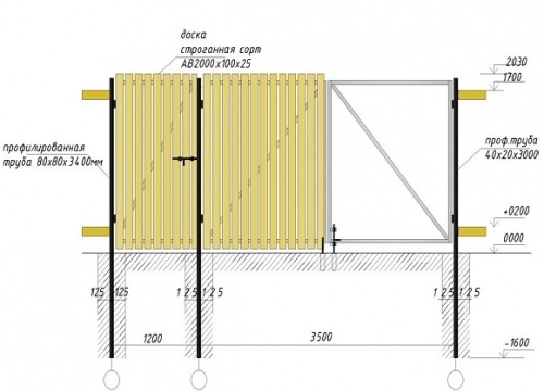
Основа ворот – каркас может быть деревянной или металлической. Выбор зависит от типа конструкции и предпочтений исполнителя. Для откатных ворот изготавливается металлический каркас, для распашных – на собственное усмотрение.

Последовательность выполнения работы:
- Монтаж опорных столбов:
- отмерять расстояние между опорами (ширину ворот) и выкопать две ямы глубиною около 1 м;
- дно ям усыпать кирпичом и частями бетона;
- установить столбы, присыпать их землей и выровнять с помощью строительного уровня;
- залить раствором бетона и оставить застывать на 5 дней.
- Изготовление створок:
- соорудить каркас из деревянных досок или более прочный – из металлического профиля; нарезать металл по чертежу ворот, выложить профиля на ровную поверхность, проверить ровность диагоналей и сварить соединения сваркой;
- приступить к накручиванию досок на основу, начиная с края;
- при помощи дрели по центру доски просверлить сквозное отверстие, соответствующий проем сделать и в каркасе;
- вкрутить шурупы.
- Установка петлей:
- рассоединить петли;
- одну часть петли приварить/прикрутить к опоре, вторую – к каркасу полотна ворот.
- Монтировать ручку для открывания дверцы и засов для фиксации ворот в закрытом положении.
Садовые ворота своими руками: видео
Ворота садовые металлические
Рассмотрим порядок создания калитки с использованием натяжной сетки-рабицы. Габариты будущей конструкции составляют: ширина – 98 см, длина – 142 см.
Монтаж створок
Осуществление монтажа створок необходимо производить вместе с помощником. Все работы осуществляются в определенной последовательности:
- Сначала створки устанавливаются вплотную к опорам и связываются проволокой.
- После этого происходит измерение зазоров и определение правильности расположения конструкции.
- На следующем этапе осуществляется приваривание петель. После навешивания необходимо проверить, правильно ли установлены створки и не соприкасаются ли они в закрытом положении.
- После этого все закрепленные элементы необходимо покрыть краской, предварительно загрунтовав их.
Чтобы создаваемые конструкции были достаточно надежными, необходимо поставить на калитку замок и подогнать щеколды. При этом для ригелей замка можно создать отверстия прямо в профильной трубе. Многими производится установка автоматических ворот для дачи. Для нормального функционирования ворот необходимо время от времени проверять состояние конструкции.
- Как установить забор из сетки рабицы своими руками
- Гаражные секционные подъемные ворота
- Чем покрасить деревянный забор своими руками
- Забор из профнастила своими руками
Обсудить статью на форуме
Установка ворот
- Самое интересное, что принцип установки ворот практически ничем не отличается от процесса обустройства забора. В первую очередь требуется установить опорные части, которые должны располагаться по бокам забора. Лучше всего создать небольшой ленточный фундамент, который не только станет своеобразной основой для всего ограждения и забора, но и обеспечит достаточно высокую надежность конструкции. Важно отметить, что можно обойтись и без сплошного фундамента, ограничиваясь созданием углубления под каждую опору.
- Опоры должны представлять собой сваи, которые соответствуют габаритам забора. Поле создания углублений и помещения в них свай происходит заливка бетоном. Вокруг свай можно произвести укладку кирпича, что скроет металлические элементы. В это же время в опорах должны присутствовать выступающие металлические элементы, благодаря которым можно будет приварить завесу для монтажа ворот.
- После расчета всех размеров, необходимых для установки ворот (хотя большая часть расчетов делается еще раньше), происходит конечный этап работ.
- Очевидно, что забор должен надежно фиксироваться, и зачастую это происходит на уровне земли примерно по центру. Создается соответствующее отверстие, которое должно базироваться на металлической гильзе.
- Если речь идет об автоматических воротах, то здесь все может существенно усложняться в зависимости от присутствующих элементов. К примеру, могут иметься механизмы, требующие дополнительного крепления на боковых опорах.
Красивые примеры для вдохновения
У каждого свои критерии красоты: одним нравится богатое убранство, другие видят эстетику в минимализме. Если хочется сделать ворота в первую очередь украшением, так сказать «лицом» своего дома, выбирайте сложные дизайны: используйте ковку или сварку металла, а также художественную резьбу по дереву.
Например, на первом примере ворота изображают каменный мостик с фонарями и перилами, а также рыбаком в лодке. На втором — красивые ворота с удивительным орнаментом по краю и сложным сюжетом.


В качестве чего-то более простого, но не менее визуально привлекательного, подойдет имитация ковки: как на примере ниже. Профлист под дерево, металлический каркас и декоративные петли, придающие конструкции особый шарм.

Если же ворота должны быть в первую очередь функциональными, а дизайн — дело второстепенное, выбирайте универсальные современные решения. Воротные ставни должны быть минималистичными с геометричными вставками: такие не выйдут из моды еще много лет.
Например, слева створки из ДПК в стильном графитовом оттенке. Сквозные отверстия в центре служат одновременно украшением и позволяют хозяевам увидеть гостей, а гостям — хозяев.
Пример справа — максимально простой, но отвечающий современным тенденциям. Собственники и дизайнеры постепенно отказываются от 3-метровых глухих ограждений в пользу аккуратных заборчиков — такие не загораживают вид и не портят ландшафт. Особенно важно, если дом находится в живописном районе.


Выбирая воротную конструкцию, помните: нужна функциональная, удобная и красивая! Смотрите фото ворот для частного дома в галерее и выбирайте наиболее подходящие.
{RANDOM_PARAGRAPH=401-800}
{RANDOM_SECTION=500-3000}






